新聞中心
>> 聯系我們
徐州銘輝礦山設備制造有限公司
聯系人:張經理
手機:13852141234
電話:0516-85151789
網址:www.skydream98.com.cn
地址:江蘇徐州市泉山區南湖工業園
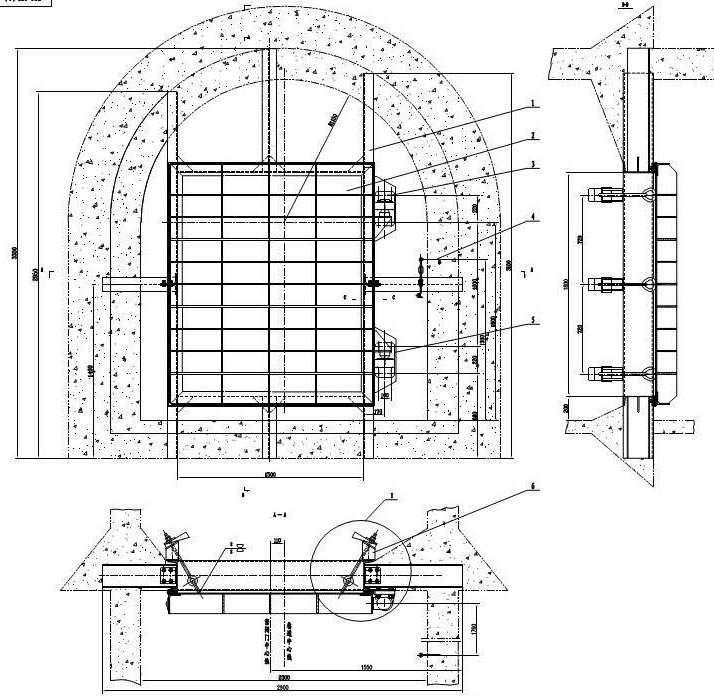
防水密閉門結構及示意圖 - 銘輝礦山
發布日期:2023-06-19 信息來源:本站原創
產品主要結構
1、本密閉門門扇用100x100x10角鋼為外框架,δ12鋼板和δ14鋼板交替焊接成井字形作為加強筋板,用δ8鋼板為覆蓋平板。
2、門框為槽鋼、工字鋼組合框架構件。
3、拉緊裝置為楔形滑塊楔緊。
4、門樞采用滾動軸承支撐。

防水密閉門安裝示意圖



